h免费在线观看_亚洲热在线视频_四虎影院免费看_国产在线视频三区_三级欧美在线_四虎av网址

  • 服務熱線:021-80370923

BZ41H夾套保溫閘閥

BZ41H夾套保溫閘閥圖片

BZ41H夾套保溫閘閥

  • 閥門型號:BZ41H
  • 通徑規格:DN15~300mm
  • 結構形式:閘板式
  • 閥體材質:鍛鋼、鑄鋼、不銹鋼
  • 公稱壓力:1.6Mpa~6.4Mpa/150LB-300LB-600LB
  • 適用溫度:-20ºC~+150ºC~425ºC~550ºC
  • 應用范圍:工業、水、蒸汽、油品、污水
  • 產品特點:夾套中可自由地流過蒸汽或其它熱的保溫介質
BZ41H夾套保溫閘閥主要用于石油、化工、冶金、*藥等各類系統中,適用于公稱壓力PN1.6~6.4MPa(*標)150LB~300LB-600LB(美標)工作溫度-29~425℃(碳鋼)、-40~500℃(不銹鋼)的管路上作啟閉用。該閥門的夾套焊裝于閥門的兩法蘭之間,閥門的側面、底部設置有夾套的連接口,夾套中可自由地流過蒸汽或其它熱的保溫介質,確保粘稠介質可順暢地流過閥門。

標準規范

設計*造 結構長度 連接法蘭 壓力溫度等* 試驗與檢驗
GB12234 -89
API600
GB12221-89 ANSI B16.5 
GB9112~9131 
JB/T74~90 
JB/T79-94
SH3006 
HG20615~20635
GB9131
ANSI B16.34
JB/T 9092
GB13927
API598
 

產品特點

1 夾套焊裝于閥門的兩法蘭之間,閥門的側面、底部設置有夾套的連接口。
2 連接法蘭尺寸比同一規格普通閥門的連接法蘭大一到兩個規格,結構長度與同規格的普通閥門相同。
3 夾套中可自由地流過蒸汽或其它熱的保溫介質,確保粘稠介質可順暢地流過閥門。

性能規范

型號 公稱壓力 試驗壓力(MPa) 工作溫度℃ 適用介質
強度(水)(MPa) 密封(水)(MPa) 低壓密封(空氣)(MPa)
BZ41H-16C
BZ41W-16P(R)
1.6 2.4 1.8 0.6 ≤425 酸、堿、濾清類
BZ41H-25C
BZ41W-25P(R)
2.5 3.8 2.8 0.6 ≤550 酸、堿、濾清類
BZ41H-40C
BZ41W-40P(R)
4.0 6.0 4.4 0.6 ≤450 酸、堿、濾清類
BZ41H-64C
BZ41W-64P(R)
6.4 9.6 7.0 0.6 ≤300 酸、堿、濾清類

主要零件材料

零件名稱 ZG1Cr18Ni9Ti系列 ZG00Cr18Ni10系列 ZG1Cr18Ni12Mo2Ti系列 ZG00Cr17Ni14Mo2系列 WCB系列
閥體/閥蓋 ZG1Cr18Ni9Ti ZG00Cr18Ni10 ZG1Cr18Ni12Mo2Ti ZG00Cr17Ni14Mo2 WCB
閘板 ZG1Cr18NI9Ti ZG00Cr18Ni10 ZG1Cr18Ni12Mo2Ti ZG00Cr17Ni14Mo2 1Cr13
閥桿 1Cr18Ni9Ti ooCr18Ni10 1Cr18Ni12Mo2Ti ooCr17Ni14Mo2 1Cr13
填料 石墨+304 石墨+304 石墨+304 石墨+304 石墨Graphite
墊片 石墨+304
Graphite+304
石墨+304
Graphite+304
石墨+304
Graphite+304
石墨+304
Graphite+304
石墨+304
Graphite+304
壓蓋 ZG1Cr181Ni10 ZG00Cr18Ni10 ZG1Cr18Ni12Mo2Ti ZG00Cr17Ni14Mo2 WCB
填料壓環 1Cr18Ni9Ti 00Cr18Ni10 1Cr18Mi12Mo2Ti 00Cr17Ni14Mo2 1Cr13
螺栓 1Cr171Ni2 1Cr171Ni2 1Cr171Ni2 1Cr171Ni2 35CrMoA
螺母 1Cr18Ni9Ti 1Cr18Ni9Ti 1Cr18Ni9Ti 1Cr18Ni9Ti 45

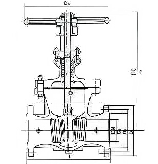
外形結構圖

BZ41H夾套保溫閘閥,保溫法蘭閘閥

主要外形尺寸和連接尺寸

型號 壓力 公稱通徑
DN
尺寸(mm)
L D D1 D2 b z-d H D0
BZ41H-16C
BZ41W-16P
BZ41W-16R
1.6 40 200 160 125 100 18-3 4-18 310 200
50 250 180 145 120 18-3 4-18 358 240
65 265 195 160 135 20-3 8-18 373 240
80 280 215 180 155 20-3 8-18 435 280
100 300 245 210 185 22-3 8-18 500 300
125 325 280 240 210 24-3 8-23 614 320
150 350 335 295 265 26-3 12-23 674 360
200 400 405 355 320 30-3 12-25 818 400
250 450 460 410 375 30-4 12-25 969 450
300 500 520 470 435 34-4 16-25 1145 560
BZ41H-25C
BZ41W-25P
BZ41W-25R
2.5 40 200 160 125 100 20-3 4-18 358 240
50 250 180 145 120 22-3 8-18 373 240
65 265 195 160 135 22-3 8-18 435 280
80 280 230 190 160 24-3 8-18 500 300
100 300 270 220 188 28-3 8-15 614 320
125 325 300 250 218 30-3 8-25 674 360
150 350 360 310 278 34-3 12-25 818 400
200 400 425 370 332 36-3 12-30 969 450
250 450 485 430 390 40-4 12-30 1145 560
300 500 550 490 448 40-4 16-34 1145 640

夾套保溫閘閥 產品選型

訂貨時請填寫《規格書》或注明以下內容:
1、若訂貨前未選定型號,請向我們提供使用參數:1.公稱通徑,2.流體性質(包括公稱壓力、溫度、粘度或酸堿性),3.閥體、閥芯材料。
2、若已經由設計單位選定我公司的產品型號,請按型號直接向我司**部訂購;
3、當使用的場合非常重要或管路比較復雜時,請您盡量提供設計圖紙和詳細參數,由我們的專*為您審核把關。

相關名稱:BZ41H夾套保溫閘閥,不銹鋼保溫閘閥

上一篇:DZ41W手動低溫閘閥 下一篇:沒有數據了